Proyectos
Casa “Sol y Viento”
 
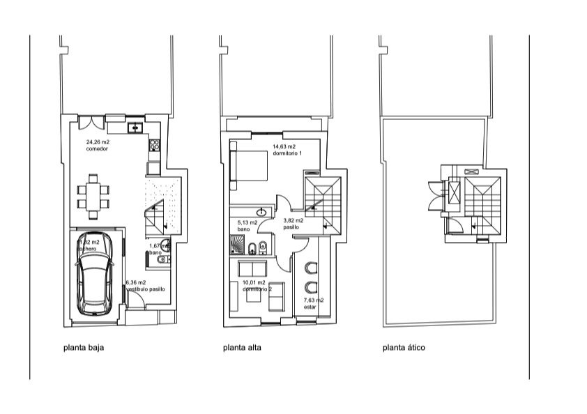
Casa pasiva mediterránea en Mijas, provincia Málaga
Terminación: 2014 / 2015
Proyectista de la casa pasiva: Arquitecta Katrin Falck-Szenessy
Colaborador: Estudio Técnico Vera
Empresa ejecutora: Casa Linda S.L.
Área energéticamente acondicionada: 400m2
Particularidades:
PHPP necesidad de enfriamiento anual: 5 kWh/m2a
PHPP necesidad de energía primaria: 78 kWh/m2a
Ensayo de presión-cambio de aire n50: 0,5 1/h
Terminación: 2014 / 2015
Proyectista de la casa pasiva: Arquitecta Katrin Falck-Szenessy
Colaborador: Estudio Técnico Vera
Empresa ejecutora: Casa Linda S.L.
Área energéticamente acondicionada: 400m2
Particularidades:
- Tejado plano grande para un aprovechamiento activo de la energía solar térmica
- Control de persianas automático dirigido por el sol mediante la inmótica KNX
- Enfriamiento nocturno en verano mediante empuje aerostático térmico
- Colector geotérmico intercalado para el precalentamiento o enfriamiento del aire del sistema de ventilación
- Sistema de aprovechamiento de aguas pluviales para el riego del jardín y las cisternas de los inodoros
PHPP necesidad de enfriamiento anual: 5 kWh/m2a
PHPP necesidad de energía primaria: 78 kWh/m2a
Ensayo de presión-cambio de aire n50: 0,5 1/h
Otros Proyectos  
Casa “marYpinos”:
Vivienda unifamiliar
urbanización La Cortijera, La Cala de Mijas
2019/2020 (Proyecto en camino)
Superficie construida: 206m2 más souterrain
Esta casa unifamiliar se encuentra a borde de una parcela de zona verde con muchos pinos. El pino de la entrada a la parcela se conservaba y se llama “Peter Pine”. La casa tiene souterrain hacia el jardín y piscina salada y está planificada según el estándar Passivhaus.
Vivienda unifamiliar
urbanización La Cortijera, La Cala de Mijas
2019/2020 (Proyecto en camino)
Superficie construida: 206m2 más souterrain
Esta casa unifamiliar se encuentra a borde de una parcela de zona verde con muchos pinos. El pino de la entrada a la parcela se conservaba y se llama “Peter Pine”. La casa tiene souterrain hacia el jardín y piscina salada y está planificada según el estándar Passivhaus.
La Villa Valtocado:
Vivienda unifamiliar
urbanización Valtocado de Mijas
2019/2020 (Proyecto en camino)
Superficie construida: 261m2 más souterrain
Ubicación: La casa pasiva está ubicada en la urbanización Valtocado de Mijas en una ladera con mucho viento a una altura de 282m por encima del nivel del mar. Tiene maravillosas vistas, piscina interior y una piscinita larga como “barandilla horizontal” en la terraza de la planta baja.
Vivienda unifamiliar
urbanización Valtocado de Mijas
2019/2020 (Proyecto en camino)
Superficie construida: 261m2 más souterrain
Ubicación: La casa pasiva está ubicada en la urbanización Valtocado de Mijas en una ladera con mucho viento a una altura de 282m por encima del nivel del mar. Tiene maravillosas vistas, piscina interior y una piscinita larga como “barandilla horizontal” en la terraza de la planta baja.
Casa AyD:
Vivienda unifamiliar
urbanización Alhaurin de la Torre
2019/2020 (Proyecto en camino)
Superficie construida: 157m2 más sótano
La casa consta de una planta baja de acceso con salón, comedor, cocina y un dormitorio de visitantes, de una planta alta con los tres dormitorios y de un sótano grande con posibilidades de un taller, estudio y zona para jugar.
Especial de esa casa es su patio interior que forma el centro de la casa.
Vivienda unifamiliar
urbanización Alhaurin de la Torre
2019/2020 (Proyecto en camino)
Superficie construida: 157m2 más sótano
La casa consta de una planta baja de acceso con salón, comedor, cocina y un dormitorio de visitantes, de una planta alta con los tres dormitorios y de un sótano grande con posibilidades de un taller, estudio y zona para jugar.
Especial de esa casa es su patio interior que forma el centro de la casa.
Casa VyN:
Vivienda unifamiliar
Salvador Allende en Armilla
2019/2020 (Proyecto en camino)
Superficie construida: 135m2
Esa casa adosada se encuentra en Armilla, una región de la provincia de Granada, y está planificada según el estándar Passivhaus.
Es estrecha pero eficiente y muy bien distribuida. La casa consta de una planta baja con un garaje, un comedor con cocina, vestíbulo, una planta alta con 2,5 dormitorios y una terraza en la cubierta.
Vivienda unifamiliar
Salvador Allende en Armilla
2019/2020 (Proyecto en camino)
Superficie construida: 135m2
Esa casa adosada se encuentra en Armilla, una región de la provincia de Granada, y está planificada según el estándar Passivhaus.
Es estrecha pero eficiente y muy bien distribuida. La casa consta de una planta baja con un garaje, un comedor con cocina, vestíbulo, una planta alta con 2,5 dormitorios y una terraza en la cubierta.
Casa “Hem-Alonso”:
Vivienda unifamiliar
urbanización Cortijo de la Luz
Otura (Granada)
2005 (Proyecto)
2006 (Final de obra)
Trabajo publicado en el número 404 de la revista Casa y jardín
Jugando con las direccionales que plantea el terreno y su pronunciado desnivel, planteo la distribución de esta vivienda creando dos volúmenes muy señalados, articulados en la zona de acceso y escalera.
Vivienda unifamiliar
urbanización Cortijo de la Luz
Otura (Granada)
2005 (Proyecto)
2006 (Final de obra)
Trabajo publicado en el número 404 de la revista Casa y jardín
Jugando con las direccionales que plantea el terreno y su pronunciado desnivel, planteo la distribución de esta vivienda creando dos volúmenes muy señalados, articulados en la zona de acceso y escalera.
Casa “Casa Otura”:  
Vivienda unifamiliar
Otura (Granada)
2001 (Proyecto)
2002 (Final de obra)
Vivienda unifamiliar
Otura (Granada)
2001 (Proyecto)
2002 (Final de obra)
Casa “Lázaro-Marcos”:
Vivienda unifamiliar
Padul (Granada)
2003 (proyecto)
2005 (final de obra)
A partir de un volumen de dos plantas en forma de L se organiza la vivienda creando un espacio a dos alturas que ser· el corazón de la casa.
Vivienda unifamiliar
Padul (Granada)
2003 (proyecto)
2005 (final de obra)
A partir de un volumen de dos plantas en forma de L se organiza la vivienda creando un espacio a dos alturas que ser· el corazón de la casa.
Casa “Mingorance-Roldán”:
Vivienda unifamiliar
Pulianas (Granada)
2014 (Proyecto)
En una urbanización de nueva creación, planteo esta vivienda teniendo en cuenta que la mejor orientación, vistas a Sierra Nevada y lindero a espacio público coinciden, obteniendo como resultado una vivienda con mucha luz y visuales.
Vivienda unifamiliar
Pulianas (Granada)
2014 (Proyecto)
En una urbanización de nueva creación, planteo esta vivienda teniendo en cuenta que la mejor orientación, vistas a Sierra Nevada y lindero a espacio público coinciden, obteniendo como resultado una vivienda con mucha luz y visuales.
Casa “Soto-Camacho”:
Vivienda unifamiliar
Urbanización Cortijo de la Luz
Otura (Granada)
2003 (Proyecto)
2005 (Final de Obra)
Vivienda unifamiliar
Urbanización Cortijo de la Luz
Otura (Granada)
2003 (Proyecto)
2005 (Final de Obra)
Casa “El Atabal”:
Vivienda unifamiliar
urbanización El Atabal (Málaga)
2013 (Anteproyecto)
En una parcela de forma irregular, con una fuerte pendiente descendente, se plantea esta vivienda con la clara intención de aprovechar al máximo las vistas hacia el mar. Con acceso rodado y peatonal desde la parte superior, se escalonan y giran los volúmenes que albergan las distintas zonas de la vivienda buscando las curvas de nivel, articulándose y conjugando su geometría unos con otros, conectados en vertical por la escalera y el ascensor.
Vivienda unifamiliar
urbanización El Atabal (Málaga)
2013 (Anteproyecto)
En una parcela de forma irregular, con una fuerte pendiente descendente, se plantea esta vivienda con la clara intención de aprovechar al máximo las vistas hacia el mar. Con acceso rodado y peatonal desde la parte superior, se escalonan y giran los volúmenes que albergan las distintas zonas de la vivienda buscando las curvas de nivel, articulándose y conjugando su geometría unos con otros, conectados en vertical por la escalera y el ascensor.


 
 
 
 
 
 
 
 
 
 
 
 
 
 
 
 
 
 
 
 
 
 
 
 
 
 
 
 
 
 
 
 
 
 
 
 
 
 
 
 
 
 
 
 
 
 
 
 
 
 
 
 
 
 
 
 
 
 
 
 
 
 
 
 
 
 
 
 
 
 
 
 
 
 
 
 
 
 
 
 
 
 
 
 
 
 
 
 
 
 
 
 
 
 
 
 
 
 
 
 
 
